Liebe Gäste,
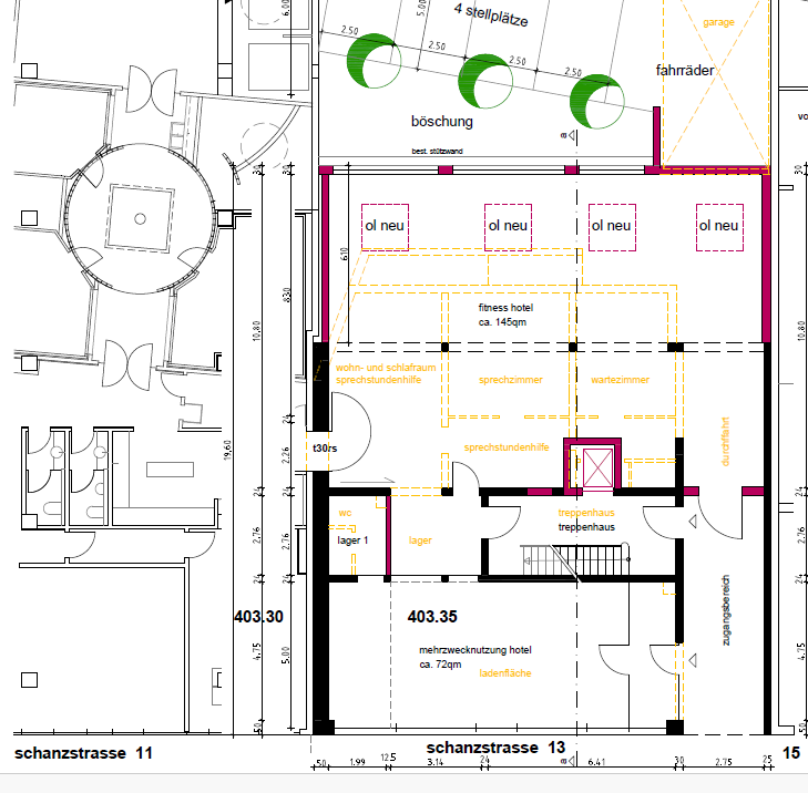
wir freuen uns, Ihnen mitteilen zu können, dass das Hotel City Krone wächst! Das angrenzende Gebäude in der Schanzstraße 13 wird derzeit energetisch saniert und künftig direkt mit unserem Hotel verbunden.
Was entsteht neu?
Baufortschritt:
Gibt es Einschränkungen?
Bleiben Sie gespannt – wir halten Sie hier regelmäßig mit Updates auf dem Laufenden!
Im Herzen von Friedrichshafen und nur 100 Meter vom Bodensee entfernt – ob Sightseeing, Shopping oder Wassersport, von unserem Hotel aus ist alles möglich.
Erleben Sie Verwöhnmomente: In unserem Wellnessbereich erwarten Sie Sauna, Pool und Entspannung pur – ideal nach einem aktiven Tag am Bodensee.







